







Vă prezentăm o proprietate unifamilială, ideală pentru o familie care caută spațiu generos, compartimentare eficientă și liniște, la doar câteva minute de oraș. Casa este individuală, situată pe un teren de 400 mp, și oferă o suprafață utilă de 132 mp, desfășurată pe două niveluri.
Localizare: Apahida – la intrarea în satul Câmpenești, la doar 100 metri de grădiniță și cu acces facil către centrul municipiului Cluj-Napoca.
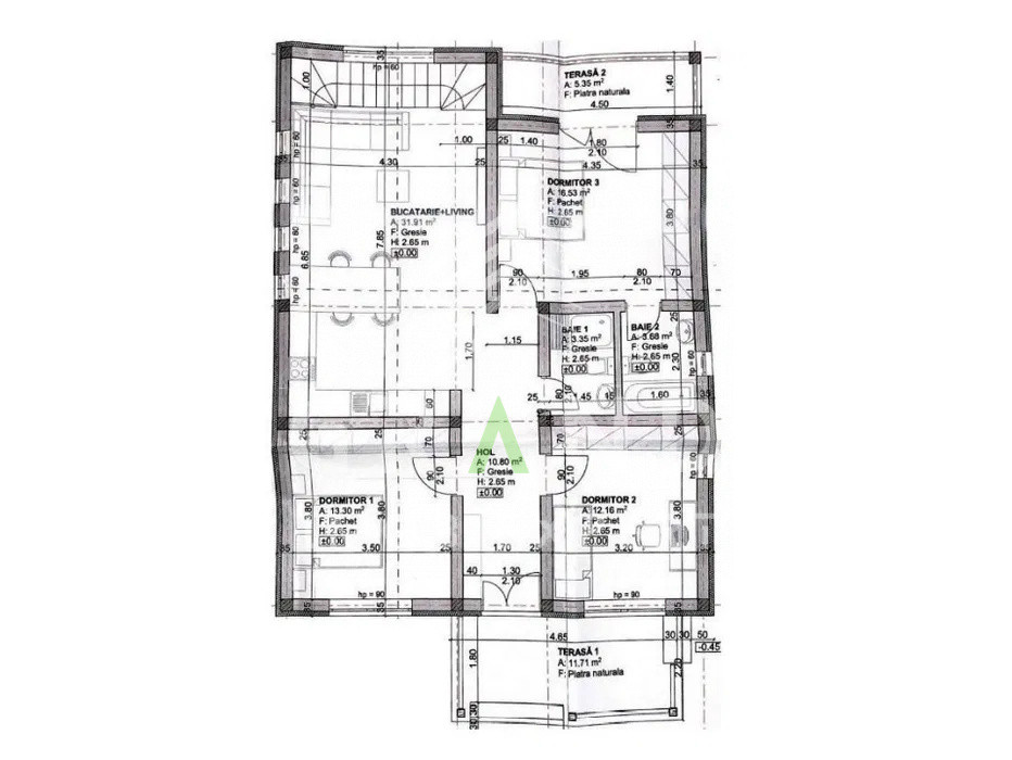
Compartimentare:
Parter (zona principală locuibilă):
3 dormitoare spațioase
2 băi
Living luminos cu bucătărie open-space
Demisol (cu ieșire la nivelul solului):
2 camere suplimentare (pot fi amenajate ca birou, spațiu hobby, cameră de oaspeți sau chiar zonă separată pentru locuit)
Pod (~70 mp): ideal pentru spațiu de depozitare sau, opțional, zonă de relaxare/jocuri
Stadiu construcție și finisaje:
Imobilul se vinde în stadiu de semifinisat, oferind posibilitatea de personalizare interioară.
Predarea se va face cu toate utilitățile racordate: apă, curent, gaz și canalizare.
Suprafața construită: 168 mp
Suprafața utilă: 132 mp
Detalii tehnice:
Structură: Beton + cărămidă
Suprafață teren: 400 mp
An construcție: 2024
Stare juridică: Acte la zi, Carte Funciară
Preț: 173000 € usor negociabil
Pentru mai multe detalii sau pentru programarea unei vizionări, nu ezitați să ne contactați.